
Челична структура Гуттери су кључна компонента система одводње грађевинских зграда. Њихова основна функција је да сакупља кишну воду са крова, усмерава га у вертикалне цеви, а затим га испразни на систем за одводњавање на отвореном, спречавајући га директним зидовима или фондацијама за натапање. Дизајн производа и уградња ливеииуана карактерише велика чврстоћа и лагане тежине, обезбеђујући глатку одводњу и изузетну издржљивост.
Челична структура Гуттери су кључна компонента система одводње грађевинских зграда. Њихова основна функција је да сакупља кишну воду са крова, усмерава га у вертикалне цеви, а затим га испразни на систем за одводњавање на отвореном, спречавајући га директним зидовима или фондацијама за натапање. Дизајн производа и уградња ливеииуана карактерише велика чврстоћа и лагане тежине, обезбеђујући глатку одводњу и изузетну издржљивост.
Ливеииуан-ова челична структура олука израђена је од материјала отпорна на корозију и отпорне на ударце.
Наш производ је топло поцинковано, нудећи одличну отпорност на корозију, ниску цену и дуг радни век. Доступно у дебљини 1,5-2,5 мм, погодно је за већину апликација.
Направљен од нерђајућег челика, овај производ нуди отпорност на корозију и посебно је погодан за обално или влажно окружење. Доступно у дебљини 1,0-2,0 мм, нуди вишу цену, али дуг радни век.
Наши челични производи пресвучени у боји заснивају се на поцинчаном челику, пресвужени премаз отпорним на временске прилике, попут полиестера или флуорокарбона, и за отпорност на корозију и украсне ефекте. Доступно у дебљини 1,2-2,0 мм, погодни су за зграде које захтевају висок ниво естетске привлачности.
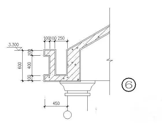
Структурни облик челичног структуре олука мора се прилагодити кровном нагибу и дизајн натерије. Уобичајене врсте укључују у облику слова У облику у облику Процес инсталације је следећи:
Наши челична структура олуја користе угао челичне заграде за олуку да би их причврстили на стрехе челичне структуре или пурнице. Размак носача је 600-1000 мм како би се осигурала чак и дистрибуција стреса преко олука.
Готови олуци су унапред величине и повезане на лицу места помоћу конектора или заваривања. За бртвљење је потребно на споју између олука и кровног поља.
Можемо да инсталирамо трептање изнад кровног поља. Доњи крај олука треба да буде постављен испод кровног брода и запечаћен са заптивачем. Рупе за одвод треба да се обезбеде на дну олука, пре свега за повезивање са раитерним рисерима.
Наш челична структура Гуттерс Процесс Процесс за производњу у складу са димензијама цртања, савијања, сликања, завршеном инспекцијом производа, паковањем и отпремом. Ливеииуан-ова челична структура олуја дизајнирана су и инсталирана како би се осигурала отпорност на корозију, глатку дренажу и издржљивост, обезбеђујући ефикасну дренажу.